.jpg)
PARDUODAMAS NAMAS KAUNE
Panemunė, Vaidoto g. 54A
PARDUODAMAS IŠSKIRTINIS OBJEKTAS BUVUSIO 4 - OJO KAUNO KARINIO MIESTELIO (PANEMUNĖS KAREIVINIŲ) TERITORIJOJE
Projektas vertinantiems išskirtinumą ir gerą susisiekimą.
XX a. pradžioje pastatytas raudonų plytų namas - istorinio Kauno oreivystės komplekso dalis. Carinei statybai būdingos architektūros detalės – raudonų plytų mūras, dideli arkiniai langai, aukštos lubos, platūs įėjimai suteikia pastatui erdvės bei autentiškumo.
Puiki galimybė įsirengti unikalų būstą, patalpas verslui ar kūrybines dirbtuves.
Pridedami projektiniai pasiūlymai buvo suderinti su kultūros paveldo departamentu.
BENDRA INFORMACIJA:
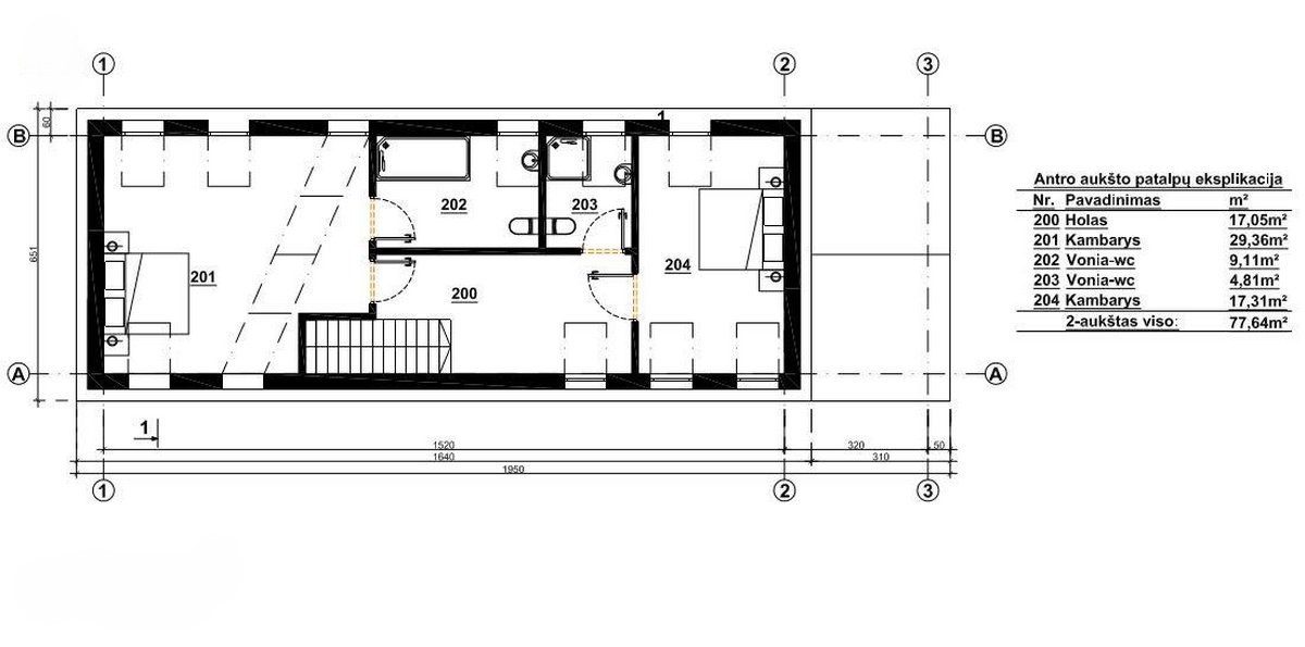
- Plotas: 99,32 kv.m.
Yra galimybė plotą padidinti iki 167 kv.m. įsirengiant antrą aukštą.
- Sklypas: 6,86 a. Gyvenamosios paskirties.
KOMUNIKACIJOS:
- Elektra atvesta į sklypą
- Vandentiekis, nuotekos ir dujos yra šalia sklypo. Gautos prisijungimo sąlygos.
VIETA IR INFRASTRUKTŪRA:
- Sklypas toliau nuo pagrindinės Vaidoto gatvės, vieta rami, aplink daug gamtos.
- Asfaltuotas privažiavimas iki pat sklypo.
- Iki centro apie 5 km., arba 10 minučių automobiliu;
- Artimiausia viešojo transporto stotelė - už 300 m.;
- Artimiausia maisto prekių parduotuvė - už 800 m.;
- Kauno šv. Mato vidurinė mokykla - už 330 m.;
- Kauno Vaidoto pagrindinė mokykla - už 500 m.
